Reforma integral
Castilla - Madrid
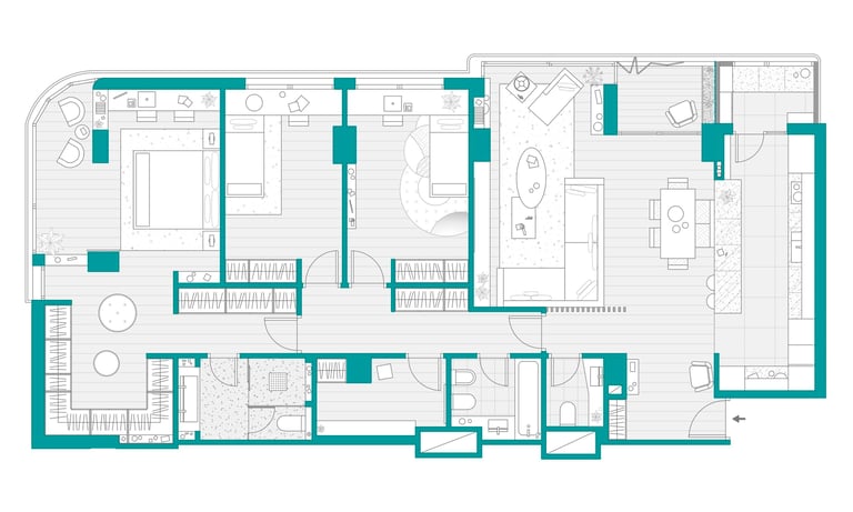
En este proyecto en el barrio de Castilla en Madrid los clientes nos pidieron conseguir espacios más amplios y conectados entre sí así como exprimir al máximo la luz natural. En la zona de día conseguimos unificar salón, comedor, cocina y recibidor en un solo espacio pero manteniendo la entidad de cada uno de ellos mediante celosías y cambios en el techo. En la zona de noche fusionamos dos dormitorios e incorporamos una terraza que no se usaba para crear un gran dormitorio principal con vestidor y baño ensuite, lleno de luz y con unas increíbles vistas a las Torres Kio. En cuanto a la materialidad hemos querido buscar la calidez de la madera, la luminosidad del blanco y destacar los pilares de hormigón visto para dar personalidad al espacio.


















































ESTADO PREVIO
ESTADO REFORMADO
