Reforma integral
Argüelles - Madrid
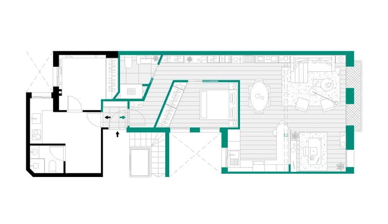
En este proyecto en el barrio de Argüelles el objetivo de nuestros clientes era reconvertir un piso muy compartimentado y oscuro en una vivienda cómoda, amplia y luminosa. El alma del proyecto es el mueble longitudinal que recorre la casa de lado a lado y da servicio tanto al recibidor, como al dormitorio, el comedor y el salón, resolviendo todas las necesidades de almacenamiento. También es clave para el resultado final el acceso en diagonal, que permite situar el baño en la única esquina sin ventanas y que la luz llegue hasta el recibidor.










































